Verkocht:Anjerstraat 18, 2691 LM 's-Gravenzande - Foto
Verkocht
+26

Anjerstraat 18 2691 LM 's-Gravenzande

  • Woonhuis
  • 4 kamers
  • 3 slaapkamers
  • Bouwjaar 1971
  • 146 m² perceeloppervlakte
  • 119 m² gebruiksoppervlakte

Beschrijving

Gelegen in een kindvriendelijke wijk in Heenweg ('s-Gravenzande) eengezinswoning met voor en achtertuin, de woning is gelegen aan een parkje in een rustige straat. In de directe omgeving scholen, winkels, openbaarvervoer en voldoende parkeergelegenheid bij de woning.

Indeling: Entree woning, hal, meterkast, gangkast, toilet. ruime woonkamer ca. 7.51 x 3.56 met half open keuken ca. 2.99 x 2.08 met diverse inbouwapparatuur met toegang tot de achter gelegen serre ca. 3.69 x 3,81 met berging ca. 33,94 x 2.02.

1e etage: Overloop met trapopgang naar tweede etage;
- Badkamer met ligbad en wastafelmeubel ca. 2.08 x 1.58
- Drie slaapkamers voorzijde 3.12 x 3.56 met vaste kastenwand, achterzijde twee slaapkamers 3.78 x 3.40 en 2.73 x 2.24.

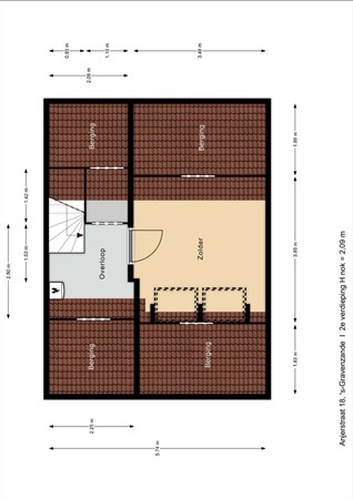
2e etage: Overloop ca. 2.09 x 2.50, met opstelplaats CV-combiketel met onder de knieschotten veel bergruimte, zolderkamer ca. 3.85 x 3.49 twee grote Velux ramen en berging aan beide zijde.

Kenmerken:
- Eigen grond
- Perceeloppervlakte ca.146m² - woonoppervlakte ca. 120 m² - inhoud ca. 430m³
- Oplevering per direct
- Gehele woning voorzien van kunststof kozijnen met dubbel glas
- Verwarming middels CV-combiketel Lease contract
- Energielabel C
- Voor en achtertuin geheel bestraat met achterom en berging 2.86 x 2.36
- Woning dient inwendig gemoderniseerd te worden
- Ouderdoms & niet-zelfbewoningsclausule van toepassing
- Deze woning is zeker een bezichtiging waard.

Aan onvolkomenheden in deze presentatie kunnen geen rechten worden ontleend.

Kaart

Kenmerken

Overdracht

Referentienummer
00029
Vraagprijs
€ 345.000,- k.k.
Status
Verkocht
Aanvaarding
Direct
Aangeboden sinds
Maandag 28 juli 2025

Bouw

Type object
Woonhuis, eengezinswoning, tussenwoning
Soort bouw
Bestaande bouw
Bouwperiode
1971
Type dak
Zadeldak
Isolatievormen
Dubbel glas

Oppervlaktes en inhoud

Perceeloppervlakte
146 m²
Woonoppervlakte
119 m²
Inhoud
430 m³
Oppervlakte overige inpandige ruimten
8 m²
Oppervlakte externe bergruimte
7 m²

Indeling

Aantal bouwlagen
3
Aantal kamers
4 (waarvan 3 slaapkamers)

Locatie

Ligging
Aan park
Beschutte ligging
Buiten bebouwde kom
In woonwijk

Tuin

Type
Achtertuin
Hoofdtuin
Ja
Oriëntering
Noord west
Heeft een achterom
Ja
Staat
Normaal
Tuin 2 - Type
Voortuin
Tuin 2 - Staat
Normaal

Uitrusting

Verwarmingssysteem
Centrale verwarming
Parkeergelegenheid
Parkeerplaats
Tuin aanwezig
Ja

Kadastrale gegevens

Kadastrale aanduiding
''s-Gravenzande L 5804
Perceeloppervlakte
146 m²
Omvang
Geheel perceel
Eigendomsituatie
Eigen grond