Verkocht:Antheunisstraat 234, 2522 ZL Den Haag - Foto
Verkocht
+8

Antheunisstraat 234 2522 ZL Den Haag

  • Appartement
  • 4 kamers
  • 3 slaapkamers
  • Bouwjaar 1931
  • 65 m² gebruiksoppervlakte
  • C Energielabel C

Beschrijving

Het betreft hier een vier kamer parterrewoning met ruime achtertuin, zeer centraal gelegen, nabij scholen, winkels. openbaar vervoer en op loopafstand van Rijswijkse Bos..

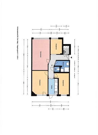
Indeling:
Open portiek, entree woning L-vormige gang, vaste kast, toilet. Royale woonkamer 5.61 x 3.20, keuken met diverse inbouwapparatuur ca. 2.88 x 1.70, achter slaapkamer ca. 4.33 x 2.86,
2 zijkamers resp. 3.91 x 1.86, 2.70 x 2.10, badkamer geheel betegeld met douche, vaste wastafel, Zeer royale zonnige achtertuin met berging ca. 69 M2 met berging

Opmerkingen:
- Woonoppervlakte ca. 65.4 m²
- Achtertuin ca. 69 m²
- Eigen grond
- Elektra 4 groepen
- Verwarming middels CV Combiketel Intergas (2022)
- Energielabel C
- Actieve VvE € 120,00 per maand
- Aandeel 1/3
- Oplevering in overleg
- Ouderdomsclausule van toepassing
- Zelfbewoning clausule van toepassing
- Gehele woning dubbelglas in kunststof kozijnen.
- Grotendeels voorzien van laminaat

KORTOM DEZE WONING IS ZEKER EEN BEZICHTIGING WAARD.

Aan onvolkomenheden in deze presentatie kunnen geen rechten worden ontleend.

Kaart

Kenmerken

Overdracht

Referentienummer
00001
Vraagprijs
€ 259.000,- k.k.
Status
Verkocht
Aanvaarding
In overleg
Aangeboden sinds
Woensdag 16 juli 2025

Bouw

Type object
Appartement, benedenwoning
Woonlaag
1e woonlaag
Soort bouw
Bestaande bouw
Bouwperiode
1931
Isolatievormen
Dubbel glas

Oppervlaktes en inhoud

Woonoppervlakte
65 m²
Inhoud
220 m³
Oppervlakte externe bergruimte
4 m²

Indeling

Aantal bouwlagen
1
Aantal kamers
4 (waarvan 3 slaapkamers)

Locatie

Ligging
Aan rustige weg
In woonwijk

Tuin

Type
Achtertuin
Hoofdtuin
Ja
Oriëntering
Noorden
Staat
Dient nog te worden aangelegd.

Energieverbruik

Energielabel
C

CV ketel

Warmtebron
Gas
Bouwjaar
2022
Eigendom
Eigendom

Uitrusting

Warm water
CV-ketel
Verwarmingssysteem
Centrale verwarming
Parkeergelegenheid
Parkeerplaats
Tuin aanwezig
Ja

Vereniging van Eigenaren

Ingeschreven bij de KvK
Ja
Jaarlijkse vergadering
Ja
Periodieke bijdrage
Ja
Reservefonds
Ja
Opstal verzekering
Ja

Kadastrale gegevens

Kadastrale aanduiding
's-Gravenhage AI 8463
Omvang
Appartementsrecht of complex
Eigendomsituatie
Eigen grond

Media

Foto's

Plattegronden