Nieuw in verhuur:Kerkstraat 20, 2514 KS Den Haag - Foto
Nieuw in verhuur
+13

Kerkstraat 20 2514 KS Den Haag € 2.250,- /mnd

  • Appartement
  • 5 kamers
  • 3 slaapkamers
  • Bouwjaar 1885
  • 91 m² perceeloppervlakte
  • 91 m² gebruiksoppervlakte
  • B Energielabel B

Beschrijving

Door het grote aantal aanvragen is de inschrijving voor bezichtiging gesloten.

This monumental 3/4 room apartment at ground level with an upstairs room on the first floor, very centrally located near the centre in a quiet street. Close to Fredrikstraat and Denneweg with shops and restaurants. Close to public transport, Central Station and roads. Beach within cycling distance.
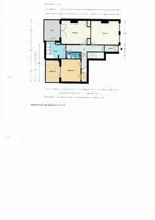
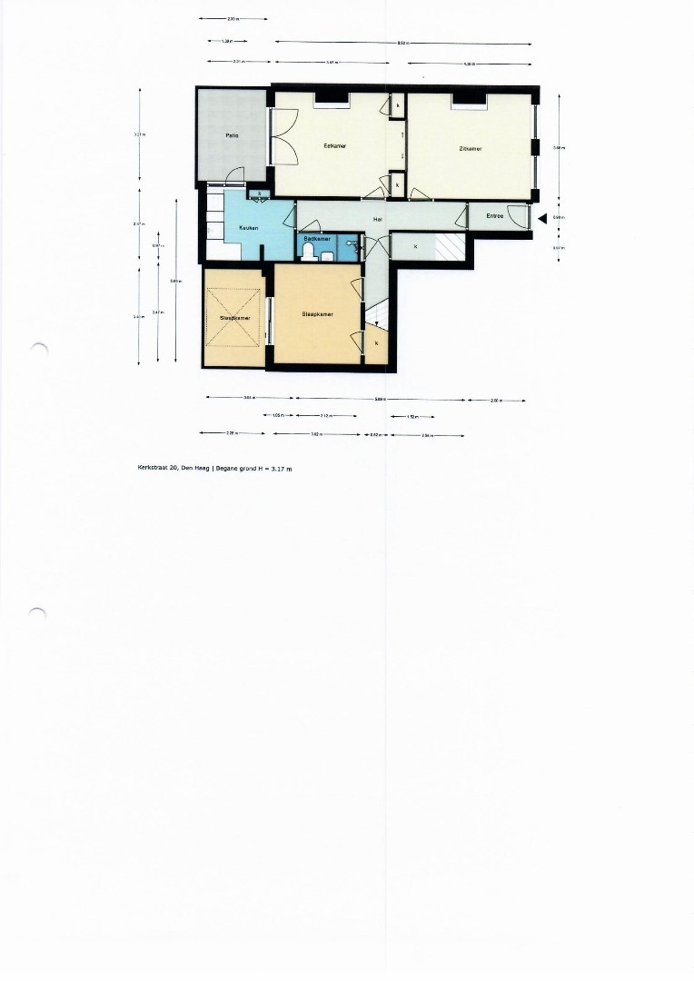
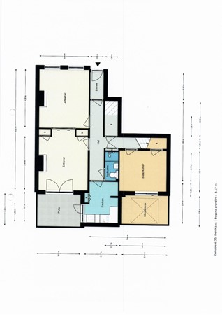
Layout: Entrance hall with meter box, L-shaped hallway, suite room approx. 8.92 x 3.68 with original sliding doors, wooden floor and high ceilings with decorative plaster and access to the patio approx. 3.21 x 2.21, comfortably furnished kitchen approx. 2.21 x 2.47 with fridge-freezer, extractor hood, dishwasher, stove with 5 gas burners. Bathroom with shower, washbasin and toilet. Bedroom approx. 302 x 3.47, with access to the covered patio approx. 3.47 x 2.28. Stairs to the upstairs room with 2nd bedroom approx. 2.42 x 3.48 with closet.
Features:
- Rental price € 2.250,00 per month
- Excluding gas, light and water, gemeentelijke belastingen
- Diplomats clause applicable
- Available immediately
- Furnished
- Energy label B
Dit monumentale 3/4 kamer appartement gelegen op de begane grond met een opkamer op de eerste verdieping, zeer centraal gelegen nabij centrum in een rustige straat. Met om de hoek de gezellige Fredrikstraat en Denneweg met winkels en horeca gelegenheden. Nabij openbaar vervoer, Centraal Station, uitvalswegen en op fietsafstand van het strand.

Indeling: Entree woning hal met meterkast, L-vormige gang, kamer en suite ca. 8.92 x 3.68 met originele schuifseparatie met houten vloer en hoge plafonds met sierpleister en toegang tot de patio ca. 3.21 x 2.21, gezellige ingerichte keuken ca. 2.21 x 2.47 met koel-vries combinatie, afzuigkap, vaatwasser, 5 pits gasfornuis met oven. Badkamer met douche, wastafelmeubel en toilet. slaapkamer ca. 302 x 3.47, met toegang tot de overdekte Patio ca. 3.47 x 2.28.
Trap naar de opkamer met 2e slaapkamer ca. 2.42 x 3.48 met vaste kast.
Kenmerken:
- Huurprijs € 2.250,00 per maand
- Exclusief gas- licht - water en gemeentelijke belastingen
- Diplomaten clausule van toepassing
- Per direct beschikbaar
- Gemeubileerd
- Energielabel B
- Nog vele originele details aanwezig.
KORTOM DIT SCHITTEREND APPARTEMENT IS ZEKER EEN BEZICHTIGING WAARD.
Aan onvolkomenheden in deze presentatie kunnen geen rechten worden ontleend.

Tuin

Patio 3.21 x 2.21

Kaart

Kenmerken

Overdracht

Referentienummer
00107
Huurprijs
€ 2.250,- per maand (incl. servicekosten, geïndexeerd)
Status
Nieuw in verhuur
Aanvaarding
Direct
Aangeboden sinds
Donderdag 22 januari 2026

Bouw

Type object
Appartement, benedenwoning
Woonlaag
1e woonlaag
Soort bouw
Bestaande bouw
Bouwperiode
1885

Oppervlaktes en inhoud

Perceeloppervlakte
91 m²
Woonoppervlakte
91 m²
Woonkameroppervlakte
32,83 m²
Inhoud
369 m³
Oppervlakte gebouwgebonden buitenruimte
5 m²

Indeling

Aantal bouwlagen
2
Aantal kamers
5 (waarvan 3 slaapkamers)

Locatie

Ligging
Beschutte ligging
In centrum
In woonwijk

Energieverbruik

Energielabel
B

Uitrusting

Tuin aanwezig
Ja
Heeft een garage
Ja

Kadastrale gegevens

Kadastrale aanduiding
Den Haag P 9957
Omvang
Appartementsrecht of complex
Eigendomsituatie
Eigen grond
Kadastrale aanduiding
Den Haag P 9957
Omvang
Appartementsrecht of complex
Eigendomsituatie
Eigen grond
Kadastrale aanduiding
Den Haag P 9957
Omvang
Appartementsrecht of complex
Eigendomsituatie
Eigen grond

Media

Foto's

Plattegronden