Verkocht:Beetsstraat 95, 2524 PK Den Haag - Foto
Verkocht
+31

Beetsstraat 95 2524 PK Den Haag

  • Woonhuis
  • 6 kamers
  • 5 slaapkamers
  • Bouwjaar 2004
  • 137 m² perceeloppervlakte
  • 120 m² gebruiksoppervlakte
  • A+ Energielabel A+

Beschrijving

Deze moderne en energiezuinige eengezinswoning is gelegen in het kindvriendelijke "Nieuw Spoorwijk"
nabij winkels, scholen, kinderopvang, openbaar vervoer NS station Moerwijk en uitvalswegen A4- A12 en A13..

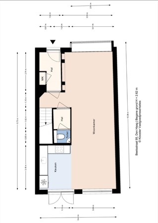
Indeling: Voortuin, entree woning begane grond hal meterkast, toilet met fonteintje, royale wooneetkamer ca. 10.38 x 3.50 x 5.43 met erker en moderne open keuken met inbouwapparatuur, toegang tot de royale achtertuin ca. 48m² met houten berging en overkapping en achterom.
Eerste verdieping: ruime overloop, twee slaapkamers respectievelijk3.99 x 3.17 en 2.43 x 3.28, badkamer met tweede toilet, inloopdouche, wastafelmeubel en wasmachine aansluiting. Slaapkamer voorzijde ca. 3.99 x 3.17, slaapkamer achterzijde ca. 3.28 x 2.43.
Tweede verdieping : Overloop, opstelplaats warmtepomp Eneco, mechanische ventilatie, slaapkamer voorzijde ca. 3.80 x 3.17, slaapkamer achterzijde ca. 3.22 x 2.65, derde kamer ca. 2.43 x 1.93.

Kenmerken:
- Oplevering per direct
- Erfpacht eeuwigdurend afgekocht
- Vraagprijs € 489.00 inclusief parkeerplaats in garage.
- Energielabel A+
- Woning geheel geïsoleerd
- Collectieve warmtepomp voor warmte, warm watertaper en koude (Eneco).
- Vloerverwarming en airco begane grond
- Gehele woning dubbelglas
- Parkeren betaald tussen 18.00 en 24.00 uur
- Totale gebruiksoppervlakte 140m²
- Meetrapport NEN 2580aanwezig
-
KORTOM DEZE ZEER ROYALE WONING IS ZEKER EEN BEZICHTIGING WAARD.
Aan onvolkomenheden in deze presentatie kunnen geen rechten worden ontleend.

Kaart

Kenmerken

Overdracht

Referentienummer
00048
Vraagprijs
€ 489.000,- k.k.
Status
Verkocht
Aanvaarding
Direct
Aangeboden sinds
Maandag 28 juli 2025

Bouw

Type object
Woonhuis, eengezinswoning, tussenwoning
Soort bouw
Bestaande bouw
Bouwperiode
2004
Type dak
Platdak
Isolatievormen
Dubbel glas
Volledig geïsoleerd

Oppervlaktes en inhoud

Perceeloppervlakte
137 m²
Woonoppervlakte
120 m²
Inhoud
425 m³
Oppervlakte externe bergruimte
20 m²
Oppervlakte gebouwgebonden buitenruimte
11 m²

Indeling

Aantal bouwlagen
3
Aantal kamers
6 (waarvan 5 slaapkamers)

Locatie

Ligging
Aan rustige weg
Beschutte ligging
In woonwijk

Tuin

Type
Achtertuin
Hoofdtuin
Ja
Oriëntering
Noorden
Heeft een achterom
Ja
Staat
Dient nog te worden aangelegd.
Tuin 2 - Type
Voortuin
Tuin 2 - Staat
Dient nog te worden aangelegd.

Energieverbruik

Energielabel
A+

Uitrusting

Verwarmingssysteem
Stadsverwarming
Parkeergelegenheid
Parkeerkelder
Tuin aanwezig
Ja

Kadastrale gegevens

Kadastrale aanduiding
's-Gravenhage AI 9777
Perceeloppervlakte
137 m²
Omvang
Geheel perceel
Eigendomsituatie
Erfpacht

Media

Plattegronden