Verkocht:Bresterstraat 48, 2523 XB Den Haag - Foto
Verkocht
+26

Bresterstraat 48 2523 XB Den Haag

  • Woonhuis
  • 7 kamers
  • 5 slaapkamers
  • 136 m² perceeloppervlakte
  • 150 m² gebruiksoppervlakte
  • C Energielabel C

Beschrijving

Gelegen in een kindvriendelijke straat, 7 kamers eengezinswoning (jaren '30 bouw) met 150m² woonplezier, nabij Rijswijkse bos, kinderboerderij, scholen, winkels, openbaar vervoer en op loopafstand van Oud Rijswijk.

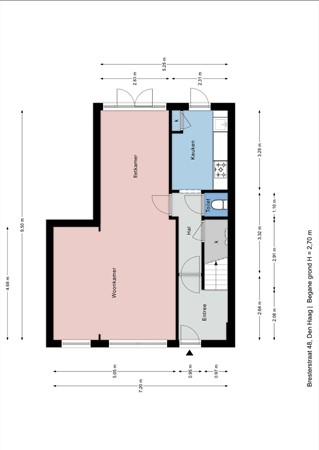
Begane grond: Voortuin, entree woning royale L-vormige hal, meterkast, toilet, inbouwkast, ruime hal, riante royale doorzon woon-eetkamer ca.9.50 x 5.05 x 2.83 met openslaande deuren naar de zonnige achtertuin, dichte keuken ca. 3.29 x 2.31 met inbouwapparatuur 5 pits gaskookplaat, oven, afzuigkap, koelkast en magnetron, en toegang tot de tuin ca, 8.30 x5.40 x 6.35, terras, overkapping en berging..

1e verdieping:
Vaste trap, overloop , 2e toilet, moderne badkamer met douche en wastafel meubel , op deze etage drie slaapkamers voorzijde respectievelijk 3.94 x 3.45, 3.69 met diepe vaste kast, tweede slaapkamer voorzijde ca. 2.97 x 2.02.en derde slaapkamer achterzijde 3.37 x 2.84 met toegang tot het balkon over de gehele breedte van de woning.

2e etage: overloop met opstelplaats CV-combiketel en wasmachine aansluiting, toegang tot de twee zolderkamers respectievelijk ca. 3.20 x7.21 en 3.43 x 3.42, onder de knieschotten veel bergruimte. Vaste trap naar de vliering ca. 7.19 x 0.80 en dakkapel.

Bijzonderheden:
- ERFPACHT eeuwigdurend afgekocht
- Energielabel C
- Woonoppervlakte ca. 150m² (meetrapport aanwezig)
- CV- combiketel
- Balkon 5m²
- WOZ-waarde € 380.000,00
- Oplevering in overleg
- Gemeentelijk beschermd stadsgezicht
- Ouderdom en materialen clausule van toepassing

KORTOM DEZE WONING IS ZEKER EEN BEZICHTIGING WAARD.
Aan onvolkomenheden in deze presentatie kunnen geen rechten worden ontleend.

Kaart

Kenmerken

Overdracht

Referentienummer
00061
Vraagprijs
€ 379.000,- k.k.
Status
Verkocht
Aanvaarding
In overleg
Aangeboden sinds
Maandag 4 augustus 2025

Bouw

Type object
Woonhuis, eengezinswoning, tussenwoning
Soort bouw
Bestaande bouw
Type dak
Zadeldak
Isolatievormen
Dakisolatie

Oppervlaktes en inhoud

Perceeloppervlakte
136 m²
Woonoppervlakte
150 m²
Inhoud
557 m³
Oppervlakte overige inpandige ruimten
5 m²
Oppervlakte externe bergruimte
7 m²
Oppervlakte gebouwgebonden buitenruimte
4 m²

Indeling

Aantal bouwlagen
1
Aantal kamers
7 (waarvan 5 slaapkamers)

Locatie

Ligging
Aan rustige weg
Buiten bebouwde kom
In woonwijk

Tuin

Type
Achtertuin
Hoofdtuin
Ja
Oriëntering
Zuid-west
Staat
Prachtig aangelegd
Tuin 2 - Type
Voortuin
Tuin 2 - Staat
Prachtig aangelegd

Energieverbruik

Energielabel
C

Uitrusting

Warm water
CV-ketel
Verwarmingssysteem
Centrale verwarming
Tuin aanwezig
Ja
Heeft een garage
Ja

Kadastrale gegevens

Kadastrale aanduiding
's-Gravenhage AI 9423
Perceeloppervlakte
136 m²
Omvang
Geheel perceel
Kadastrale aanduiding
's-Gravenhage AI 9423
Perceeloppervlakte
136 m²
Omvang
Geheel perceel
Kadastrale aanduiding
's-Gravenhage AI 9423
Perceeloppervlakte
136 m²
Omvang
Geheel perceel