Verkocht:Escamplaan 199, 2547 GE Den Haag - Foto
Verkocht
+11

Escamplaan 199 2547 GE Den Haag

  • Appartement
  • 4 kamers
  • 3 slaapkamers
  • Bouwjaar 1938
  • 79 m² gebruiksoppervlakte
  • B Energielabel B

Beschrijving

Dit ruime appartement is gelegen in een karakteristiek bovenwoning in een portiekflat in 's-Gravenhage. Het appartement beschikt over 3 slaapkamers en is gebouwd in het jaar 1938 biedt dit appartement voldoende ruimte voor een gezin..
De ligging van dit appartement is ideaal, met diverse winkels, openbaar vervoer, uitvalswegen en op loopafstand van het Zuiderpark. Daarnaast is het strand en de duinen van Scheveningen ook goed bereikbaar vanuit deze locatie.
Het energielabel van dit appartement is B, wat betekent dat het energiezuinig is en goed geïsoleerd.
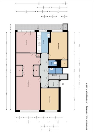
Indeling:
Open portiek trap naar tweede etage, entree woning hal, gang met diepe meterkaste, toilet badkamer met douche en wastafel, Zeer lichte woon-eetkamer ca. 8.46 x 3.52 met schouw en twee vaste kasten, achtergelegen slaapkamer ca. 3.01 x 2.90 met openslaande deuren naar het balkon, slaapkamer voorzijde ca. 3.20 x 2.61, slaapkamer achterzijde ca. 4.02 x 2.74. Nette keuken ca. 3.01 x 1.62 met diverse inbouwapparatuur, gaskookplaat, afzuigkap, oven, koelvrieskast en vaatwasser.
De berging ca. 2.00 x 2.80 is via de achterom is te bereiken door de afgesloten poort in het portiek

Opmerkingen:
- Eigen grond
- Energielabel B
- Plattegrond en meetstaat aanwezig.
- Actieve VvE € 130,00 per maand
- Reservefonds per 31-12-2023 € 113.293,31
- MJOP aanwezig
- Bouwjaar 1938
- Geheel voorzien van dubbel glas in kunststof kozijnen
- Ouderdom en materialen clausule van toepassing
- Zelfbewoning plicht

KORTOM DIT APPARTEMENT IS ZEKER EEN BEZICHTIGING WAARD!
Aan onvolkomenheden in deze presentatie kunnen geen rechten worden ontleend.

Kaart

Kenmerken

Overdracht

Referentienummer
00028
Vraagprijs
€ 239.500,- k.k.
Status
Verkocht
Aanvaarding
Direct
Aangeboden sinds
Maandag 28 juli 2025

Bouw

Type object
Appartement, bovenwoning
Woonlaag
2e woonlaag
Soort bouw
Bestaande bouw
Bouwperiode
1938
Isolatievormen
Dubbel glas

Oppervlaktes en inhoud

Woonoppervlakte
79 m²
Inhoud
263 m³

Indeling

Aantal bouwlagen
1
Aantal kamers
4 (waarvan 3 slaapkamers)

Locatie

Ligging
Aan drukke weg
In woonwijk

Energieverbruik

Energielabel
B

Uitrusting

Warm water
CV-ketel
Verwarmingssysteem
Centrale verwarming
Parkeergelegenheid
Parkeerplaats
Tuin aanwezig
Ja

Vereniging van Eigenaren

Ingeschreven bij de KvK
Ja
Jaarlijkse vergadering
Ja
Periodieke bijdrage
Ja
Onderhoudsverwachting
Ja
Opstal verzekering
Ja

Kadastrale gegevens

Kadastrale aanduiding
's-Gravenhage N 3566
Omvang
Appartementsrecht of complex
Eigendomsituatie
Eigen grond
Indexnummer
A-19

Media

Foto's

Plattegronden