Verkocht:Haverschmidtstraat 88, 2522 VT Den Haag - Foto
Verkocht
+15

Haverschmidtstraat 88 2522 VT Den Haag

  • Woonhuis
  • 5 kamers
  • 4 slaapkamers
  • Bouwjaar 1932
  • 111 m² perceeloppervlakte
  • 129 m² gebruiksoppervlakte
  • C Energielabel C

Beschrijving

Gelegen in een kindvriendelijke straat keurige vijf/zes kamer eengezinswoning met voor en achtertuin, nabij winkels, scholen, openbaar vervoer en uitvalswegen.

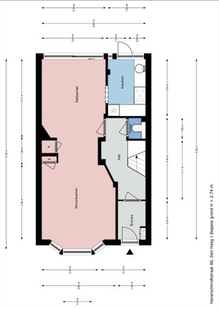
Indeling: Voortuin, entree woning, vestibule, royale hal, toilet, bergruimte onder de trap, doorgebroken wooneetkamer ca, 9.50 x 3.85 x 3.28 met laminaat vloer, half open keuken met diverse inbouwapparatuur.
1e etage: Overloop, slaapkamer voorzijde ca.5.48 x 3.32, achter slaapkamer 3.40 x 3.37 en toegang tot het balkon ca. 5.40 x 1.08, badkamer ca. 3.28 x 1.70 douche, wastafelmeubel en 2e toilet, aan de achterzijde woning balkon over de gehele breedte van de woning, waskamer ca.2.40 x 1.97.
2e etage: twee slaapkamers respectievelijk 3.11 x 2.68 en 5.49 x 266 met dakkapel, onder de kniesschotten nog royale bergruimte, opstelplaats CV-combiketel, toegang tot vliering.

Bijzonderheden:
- Erfpacht eeuwigdurend afgekocht
- Woonoppervlakte ca. 129M2
- Elektra 5 groepen met a.l.
- Verwarming middels CV-combiketel Nefit
- Oplevering in overleg
- Gehele woning grotendeels voorzien van kunststof kozijnen met dubbelglas
- Ouderdomsclausule van toeppassing.

DEZE WONING IS ZEKER EEN BEZICHTIGING WAARD.

Aan onvolkomenheden in deze presentatie kunnen geen rechten worden ontleend.

Kaart

Kenmerken

Overdracht

Referentienummer
00051
Vraagprijs
€ 329.500,- k.k.
Status
Verkocht
Aanvaarding
In overleg
Aangeboden sinds
Maandag 28 juli 2025

Bouw

Type object
Woonhuis, eengezinswoning, tussenwoning
Soort bouw
Bestaande bouw
Bouwperiode
1932
Isolatievormen
Dubbel glas

Oppervlaktes en inhoud

Perceeloppervlakte
111 m²
Woonoppervlakte
129 m²
Inhoud
320 m³
Oppervlakte externe bergruimte
4 m²

Indeling

Aantal bouwlagen
1
Aantal kamers
5 (waarvan 4 slaapkamers)

Locatie

Ligging
Aan rustige weg
In woonwijk

Tuin

Type
Achtertuin
Hoofdtuin
Ja
Oriëntering
Noord-oost
Staat
Normaal
Tuin 2 - Type
Voortuin
Tuin 2 - Staat
Normaal

Energieverbruik

Energielabel
C

Uitrusting

Verwarmingssysteem
Centrale verwarming
Tuin aanwezig
Ja
Heeft een garage
Ja

Kadastrale gegevens

Kadastrale aanduiding
's-Gravenhage AI 4926
Perceeloppervlakte
111 m²
Omvang
Geheel perceel
Eigendomsituatie
Erfpacht
Lasten
(variabel)

Media

Plattegronden