Verkocht:Isingstraat 21, 2522 JK Den Haag - Foto
Verkocht
+16

Isingstraat 21 2522 JK Den Haag

  • Appartement
  • 3 kamers
  • 2 slaapkamers
  • Bouwjaar 1931
  • 60 m² perceeloppervlakte
  • 60 m² gebruiksoppervlakte
  • C Energielabel C

Beschrijving

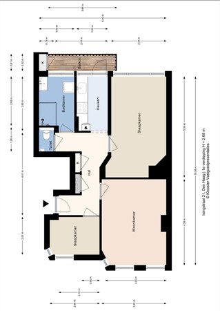
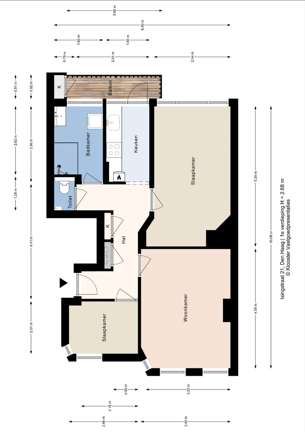
Een perfect starterswoning op de eerste etage, in een rustige straat in Laakkwartier, nabij winkels, openbaar vervoer, uitvalswegen, scholen en op loopafstand van Oud Rijswijk. De woning is grotendeels inwendig gemoderniseerd. De woning is geheel voorzijn van kunststof kozijnen met dubbele beglazing HR.

Open portie: trap naar eerste etage, entree woning L-vormige gang, meterkast, toilet. zeer lichte woon-eetkamer, royale slaapkamer achterzijde, slaap voorzijde, badkamer met douche, vaste wastafel en opstelplaats wasmachine-droger.
Nette keuken met inductie kookplaat, vaatwasser, opstelplaats CV-combiketel en toegang tot het balkon.

Bijzonderheden:
- Eigen grond
- Woonoppervlakte ca. 60m²
- Energielabel C
- Oplevering medio einde 2e kwartaal
- Actieve VvE € 85,00 per maand
- Een derde aandeel
- Ouderdom clausule van toepassing
- Grotendeels gerenoveerde woning
- Verwarming middels CV-combiketel

KORTOM DIT FRAAIE APPARTEMENT IS ZEKER EEN BEZICHTIGING WAARD.

Aan onvolkomenheden in deze presentatie kunnen geen rechten worden ontleend.

Kaart

Kenmerken

Overdracht

Referentienummer
00085
Vraagprijs
€ 239.500,- k.k.
Status
Verkocht
Aanvaarding
In overleg
Aangeboden sinds
Maandag 4 augustus 2025
Laatste wijziging
Vrijdag 9 januari 2026

Bouw

Type object
Appartement, bovenwoning
Woonlaag
1e woonlaag
Soort bouw
Bestaande bouw
Bouwperiode
1931
Isolatievormen
Dubbel glas

Oppervlaktes en inhoud

Perceeloppervlakte
60 m²
Woonoppervlakte
60 m²
Inhoud
240 m³
Oppervlakte gebouwgebonden buitenruimte
3 m²

Indeling

Aantal bouwlagen
1
Aantal kamers
3 (waarvan 2 slaapkamers)

Energieverbruik

Energielabel
C

Uitrusting

Warm water
CV-ketel
Verwarmingssysteem
Centrale verwarming
Parkeergelegenheid
Parkeerplaats
Tuin aanwezig
Ja

Vereniging van Eigenaren

Ingeschreven bij de KvK
Ja
Jaarlijkse vergadering
Ja
Periodieke bijdrage
Ja
Reservefonds
Ja
Opstal verzekering
Ja

Kadastrale gegevens

Kadastrale aanduiding
's-Gravenhage AI 8866
Omvang
Appartementsrecht of complex
Eigendomsituatie
Eigen grond
Indexnummer
A-2

Media

Plattegronden