Verkocht onder voorbehoud:Meppelweg 641, 2544 AR Den Haag - Foto
Verkocht onder voorbehoud
+27

Meppelweg 641 2544 AR Den Haag € 265.000,- k.k.

  • Appartement
  • 3 kamers
  • 2 slaapkamers
  • 1 badkamers
  • Bouwjaar 1957
  • 84 m² gebruiksoppervlakte
  • Gestoffeerd
  • D Energielabel D

Beschrijving

Deze verrassend lichte en royale maisonnette woning gelegen op de 1e en 2e etage, eigen berging op de begane grond. Op korte afstand van meerdere winkelcentra, scholen, openbaar vervoer en uitvalswegen. Verder liggen de duinen en het strand op fietsafstand; in de directe omgeving vindt u recreatiegebieden zoals Zuiderpark en de Uithof. Vanaf de balkons is er een weids, rustgevend uitzicht op het groen. Het appartement is in goede staat en dus zo te betrekken. Indeling: Centrale entreehal met brievenbussen- en bellentableau, lift en/of trappenhuis naar 1e etage, galerij naar het appartement, entree appartement, vestibule, royale hal ca. 8m² met een vaste kast en de meterkast, toiletruimte, keuken ca. 5.3 m² voorzien van w.o. koelkast, gasfornuis, zeer lichte woonkamer ca. 23 m² en toegang tot het balkon gesitueerd op het zuidwesten. Vanuit de gang is er een trap naar de slaapverdieping (2e verdieping), royale overloop met vaste kast, inpandige badkamer met een inloopdouche, wastafelmeubel, slaapkamer over de gehele breedte aan de voorzijde ca. 10.8m² met vaste kast, 2e slaapkamer over de volle breedte aan de achterzijde ca. 15m² met vaste kast en toegang tot het balkon over de gehele breedte 3.91 x 0.92 Op de begane grond is er binnen het complex nog een eigen fietsenberging aanwezig. Bijzonderheden: recht van erfpacht eeuwigdurend uitgegeven - canon- en beheerkosten zijn afgekocht - bouwjaar complex 1957 actieve VvE, bijdrage € 248,66 per maand - voorschot stoken € 80,00 per maand - warmwater centrale voorziening, gebruiksoppervlakte wonen ca. 83,7 m² energielabel D, gevelkozijnen van hout en uitgevoerd met dubbel glas, laminaat vloeren door de gehele woning .

Kenmerken:
- Eeuwigdurende erfpacht (afgekocht)
- Actieve VvE met een periodieke bijdrage van €248,66 per maand
- (190/7984) aandeel
- Oplevering per direct
- Gehele woning voorzien van dubbel glas
- Energielabel geldig tot 2035
- Cv- ketel
- Woonoppervlakte ca. 84m²
- Meetrapport aanwezig conform NEN 2580
- Vanwege het bouwjaar is de ouderdomsclausule en materiaalclausule van toepassing

KORTOM DIT APPARTEMENT IS ZEKER EEN BEZICHTING WAARD.

Aan onvolkomenheden in deze presentatie kunnen geen rechten worden ontleend.

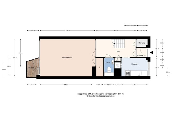
Eerste verdieping

entree, meterkast, keuken, toilet en ruime hal, woonkmamer

Tweede verdieping

Twee slaapkamers en badkamer met douche en wastafelmeubel.
En drie vaste kasten

Balkon

Twee balkons eerste etage en tweede etage

Bijzonderheden

Kenmerken:
- Erfpacht eeuwig durend afgekocht
- Actiefs VvE € 248,66 per maand
- Stookkosten € 80,00 per maand
- Reservefonds € 10.025,92
- MJOP aanwezig
- Gehele woning dubbel glas in houten kozijnen
- Oplevering in overleg kan snel
- Meetrapport aanwezig
- Energielabel D geldig tot 2035

Kaart

Kenmerken

Overdracht

Referentienummer
00099
Vraagprijs
€ 265.000,- k.k.
Servicekosten
€ 248,66
Verwarming
€ 80,-
Inrichting
Ja
Inrichting
Gestoffeerd
Status
Verkocht onder voorbehoud
Aanvaarding
In overleg
Aangeboden sinds
Dinsdag 9 december 2025
Laatste wijziging
Zaterdag 27 december 2025

Bouw

Type object
Appartement, maisonnette
Woonlaag
1e woonlaag
Soort bouw
Bestaande bouw
Bouwperiode
1957
Dakbedekking
Bitumen
Type dak
Platdak
Isolatievormen
Dubbel glas
HR-glas

Oppervlaktes en inhoud

Woonoppervlakte
84 m²
Woonkameroppervlakte
22,8 m²
Keukenoppervlakte
5,3 m²
Inhoud
269 m³
Oppervlakte externe bergruimte
6,7 m²
Oppervlakte gebouwgebonden buitenruimte
2,3 m²
Balkonoppervlakte
5,43 m²

Indeling

Aantal bouwlagen
2
Aantal kamers
3 (waarvan 2 slaapkamers)
Aantal badkamers
1 (en 1 apart toilet)

Locatie

Ligging
Dichtbij openbaar vervoer
In woonwijk
Nabij school
Nabij winkelcentrum

Energieverbruik

Energielabel
D

Uitrusting

Verwarmingssysteem
Blokverwarming
Badkamervoorzieningen
Douche
Wastafel
Heeft een balkon
Ja
Heeft een lift
Ja
Beschikt over een internetverbinding
Ja
Heeft schuur/berging
Ja

Vereniging van Eigenaren

Ingeschreven bij de KvK
Ja
Jaarlijkse vergadering
Ja
Periodieke bijdrage
Ja
Meer jaren onderhoudsplan
Ja
Opstal verzekering
Ja

Kadastrale gegevens

Kadastrale aanduiding
Den Haag AW 2543
Omvang
Appartementsrecht of complex
Eigendomsituatie
Zie akte