Verkocht:Spaarnestraat 20, 2515 VN Den Haag - Foto
Verkocht
+24

Spaarnestraat 20 2515 VN Den Haag

  • Appartement
  • 4 kamers
  • 2 slaapkamers
  • Bouwjaar 1924
  • 77 m² perceeloppervlakte
  • 77 m² gebruiksoppervlakte
  • C Energielabel C

Beschrijving

Dit ruime appartement is gelegen in de Rivierenbuurt (Stationsbuurt) op loopafstand van het Haagse stads Centrum, NS stations, openbaarvervoer en uitvalswegen Het appartement beschikt over een royale achtertuin en heeft twee slaapkamers, waardoor het ideaal is voor een klein gezin of starters. De perceeloppervlakte van de woning bedraagt 154.00 vierkante meter en de bewoonbare oppervlakte is 77.00 vierkante meter.
Het appartement heeft een energielabel C.

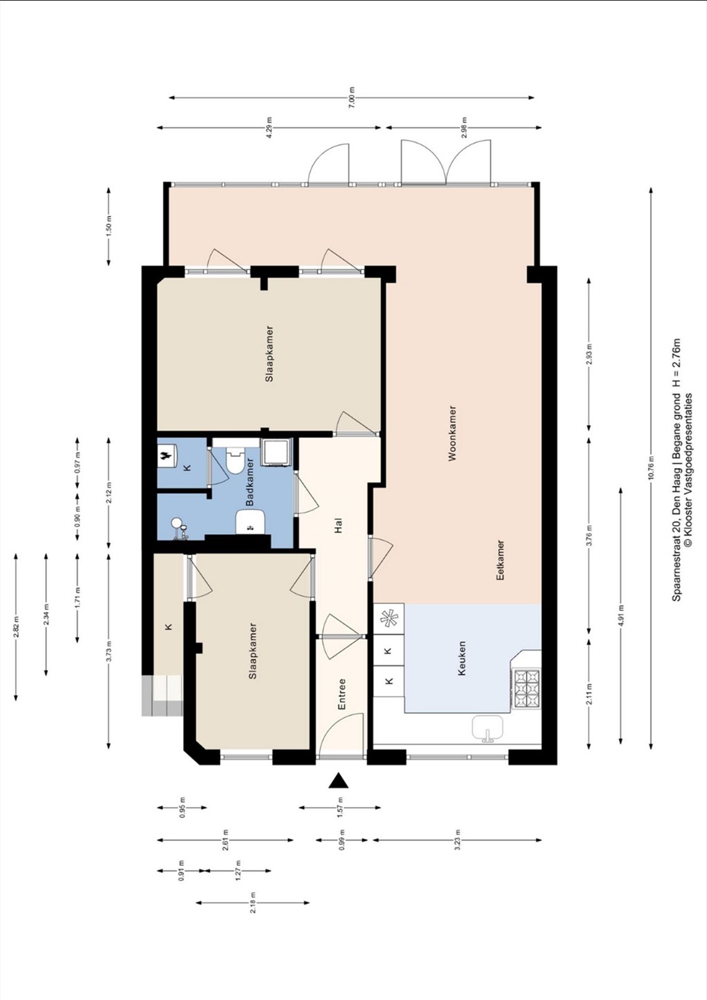
Indeling: entree vestibule, hal, royale doorzonkamer ca. 8.80x 3.25 met lichte witte vloer tegels ,voorzijde open keuken met koel-vries combinatie, vaatwasser, boiler, combimagnetron en 6 pits gaskookplaat, achterzijde met aanbouw van ca. 7.00 x 1.50 met openslaande deuren naar de royale achtertuin ca. 7.50 x7.75 met berging.
Slaapkamer voorzijde ca. 3.73 x 2.18 met diepe kast, slaapkamer achterzijde ca. 4.30 x 2.95, badkamer met douche, wastafelmeubel, toilet en wasmachine aansluiting.

Bijzonderheden:
- Eigengrond
- Oplevering per direct
- Actieve VvE € 100,00 per maand
- Reservefonds per 31-12-2024 € 11..238,15
- Collectieve opstalverzekering
- Energielabel C geldig tot 28-04-2035
- Woonoppervlakte 73.m²
- Verwarming middels CV-combiketel
- Meetinstructie conform NEN 2580
- Meetrapport aanwezig
- Gehele woning voorzien van dubbel glas
- Deze instapklare woning is zeker een bezichtiging waard.

Kortom, dit appartement is een uitstekende keuze voor wie op zoek is naar een comfortabele woning met veel ruimte en een eigen tuin, gelegen in een levendige omgeving.
Aan onvolkomen heden in deze presentatie kunnen geenrechten worden ontleend.

Kaart

Kenmerken

Overdracht

Referentienummer
00083
Vraagprijs
€ 350.000,- k.k.
Status
Verkocht
Aanvaarding
Direct
Aangeboden sinds
Maandag 4 augustus 2025
Laatste wijziging
Vrijdag 9 januari 2026

Bouw

Type object
Appartement, benedenwoning
Soort bouw
Bestaande bouw
Bouwperiode
1924
Isolatievormen
Dubbel glas

Oppervlaktes en inhoud

Perceeloppervlakte
77 m²
Woonoppervlakte
77 m²
Inhoud
285 m³
Oppervlakte externe bergruimte
6 m²

Indeling

Aantal bouwlagen
1
Aantal kamers
4 (waarvan 2 slaapkamers)

Locatie

Ligging
Aan rustige weg
Beschutte ligging
In woonwijk

Tuin

Type
Achtertuin
Hoofdtuin
Ja
Oriëntering
Noorden
Staat
Goed onderhouden

Energieverbruik

Energielabel
C

Uitrusting

Warm water
CV-ketel
Verwarmingssysteem
Centrale verwarming
Parkeergelegenheid
Parkeerplaats
Tuin aanwezig
Ja

Vereniging van Eigenaren

Ingeschreven bij de KvK
Ja
Jaarlijkse vergadering
Ja
Periodieke bijdrage
Ja
Reservefonds
Ja
Onderhoudsverwachting
Ja
Opstal verzekering
Ja

Kadastrale gegevens

Kadastrale aanduiding
's-Gravenhage R 12930
Omvang
Appartementsrecht of complex
Eigendomsituatie
Eigen grond
Indexnummer
A-1
Kadastrale aanduiding
's-Gravenhage R 12930
Omvang
Appartementsrecht of complex
Eigendomsituatie
Eigen grond
Indexnummer
A-1
Kadastrale aanduiding
's-Gravenhage R 12930
Omvang
Appartementsrecht of complex
Eigendomsituatie
Eigen grond
Indexnummer
A-1
Kadastrale aanduiding
's-Gravenhage R 12930
Omvang
Appartementsrecht of complex
Eigendomsituatie
Eigen grond
Indexnummer
A-1