Verkocht:Van den Berghstraat 13, 2522 ZM Den Haag - Foto
Verkocht
+21

Van den Berghstraat 13 2522 ZM Den Haag

  • Woonhuis
  • 5 kamers
  • 3 slaapkamers
  • Bouwjaar 1932
  • 97 m² perceeloppervlakte
  • 105 m² gebruiksoppervlakte
  • E Energielabel E

Beschrijving

Gelegen in een rustige kindvriendelijke straat, vijfkamer eengezinswoning dient inwendig deels gerenoveerd te worden, nabij scholen, winkels, openbaar vervoer, uitvalswegen en op loopafstand van "Oud Rijswijk" en uitvalswegen

Indeling: Voortuin, entree woning hal, meterkast, toilet met fonteintje, doorgebroken wooneetkamer met open haard ca. 7.95 x 3.99 x 2.50, half open keuken ca. 2.50 x 2.00 met div. inbouw apparatuur, koel-vrieskast, gas kookplaat,(inductie aansluiting aanwezig) afzuigkap, vaatwasser, magnetron.
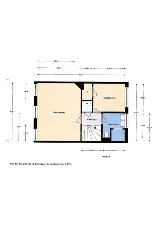
1e etage: overloop, ouderslaapkamer voorzijde ca. 5.18 x 3.94 met kledingkast en airco (Koud-warm), slaapkamer achterzijde ca. 2.89 x 2.52, moderne badkamer met regendouche, vaste dubbele wastafelmeubel, 2e toilet,
2e etage: vaste trap, voorzijde dakkapel geheel ingericht als studio met alle voorzieningen, badkamer met ligbad en vaste wastafel en toilet ca. 2.19 x 2.30, kamer ca 3.90 x 4.00. met opstelplaats CV-combiketel, wasmachine en droger aansluiting. In de knie schotten royale bergruimte.
Voortuin ca. 5.50 x 2.70, zonnige achtertuin ca. 6.25 x 5.50.

Kenmerken:
- Eigen grond
- Oplevering per direct
- Woonoppervlakte105m²
-Woning gedeeltelijk dubbelglas in kunststof en houten kozijnen
- Ouderdomsclausule van toepassing
- KORTOM DEZE WONING IS ZEKER EEN BEZICHTIGING WAARD.!
Aan onvolkomenheden in deze presentatie kunnen geen rechten worden ontleend.

Kaart

Kenmerken

Overdracht

Referentienummer
00025
Vraagprijs
€ 289.500,- k.k.
Status
Verkocht
Aanvaarding
Direct
Aangeboden sinds
Maandag 28 juli 2025

Bouw

Type object
Woonhuis, eengezinswoning, hoekwoning
Soort bouw
Bestaande bouw
Bouwperiode
1932
Type dak
Zadeldak
Isolatievormen
Gedeeltelijk dubbel glas

Oppervlaktes en inhoud

Perceeloppervlakte
97 m²
Woonoppervlakte
105 m²
Inhoud
376 m³

Indeling

Aantal bouwlagen
1
Aantal kamers
5 (waarvan 3 slaapkamers)

Locatie

Ligging
Aan rustige weg
In woonwijk

Tuin

Type
Achtertuin
Hoofdtuin
Ja
Oriëntering
Noorden
Staat
Dient nog te worden aangelegd.
Tuin 2 - Type
Voortuin
Tuin 2 - Staat
Dient nog te worden aangelegd.

Energieverbruik

Energielabel
E

CV ketel

Warmtebron
Gas
Bouwjaar
2006
Eigendom
Eigendom

Uitrusting

Verwarmingssysteem
Centrale verwarming
Tuin aanwezig
Ja
Heeft een garage
Ja

Kadastrale gegevens

Kadastrale aanduiding
's-Gravenhage AI 4346
Perceeloppervlakte
97 m²
Omvang
Geheel perceel
Eigendomsituatie
Eigen grond

Media

Plattegronden