Verkocht:Dr Augustijnlaan 16A, 2283 CE Rijswijk - Foto
Verkocht
+28

Dr Augustijnlaan 16A 2283 CE Rijswijk

  • Woonhuis
  • 6 kamers
  • 5 slaapkamers
  • Bouwjaar 1963
  • 150 m² perceeloppervlakte
  • 126 m² gebruiksoppervlakte

Beschrijving

De woning is zeer centraal gelegen in een kindvriendelijke omgeving nabij winkelcentrum, scholen, openbaar vervoer, station Rijswijk en uitvalswegen A4 - A12 en A 13.

Indeling: voortuin, entree woning, hal, meterkast, trapkast, toilet. Zeer lichte doorzon woon-eetkamer met fraaie bamboe geïsoleerde vloer en toegang tot de moderne half open keuken met inbouwapparatuur 5-pits gaskookplaat, oven, koelvrieskast, magnetron, afzuigkap, met toegang tot de heerlijke zonnige achtertuin ZW met stenen berging en achterom.

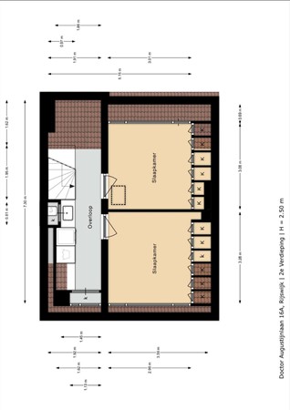
Eerste verdieping: Overloop, 2e toilet, moderne badkamer met ligbad, douche, wastafelmeubel en vloerverwarming.
Slaapkamer voorzijde met kastenwand ca.3.75 x 3.94, twee slaapkamers achterzijde respectievelijk 3.93 x 3.72 en 2.99 x 2.00.

Tweede verdieping: Overloop met opstelplaats wasmachine, droger en CV ketel, aan de voor en achterzijde dakkapellen waardoor er twee royale slaapkamer en studiekamer zijn gecreëerd respectievelijk 3.28 x 3.59 en 3.08 x 359 met veel kastruimtes met veel bergruimte in de knie schotten. Tevens nog toegankelijke vliering in de nog over de gehele breedte van de woning met hoogte van ca. 85cm

Kenmerken:
- Eigen grond
- 6 kamers
- Grondoppervlakte 150 m²
- Gebruiksoppervlakte ca.126m² (conform BBMI meetinstructie)
- Bruto vloeroppervlakte 167m²
- Gehele woning voorzien van dubbel glas (net uitzondering van de voordeur)
- Energielabel C
- Zonnige achtertuin ZW met achterom
- Al het leiding werk is vervangen standleidingen etc.
- Totale elektra en meterkast vervangen 13 groepen drie aardlekschakelaars
- Badkamer voorzien van vloerverwarming
- Gehele dak geïsoleerd
- Ouderdom clausule van toepassing

KORTOM DEZE FRAAIE WONING IS ZEKER EEN BEZICHTIGING WAARD.
Aan onvolkomenheden in deze presentatie kunnen geen rechten worden ontleend.

Kaart

Kenmerken

Overdracht

Referentienummer
00072
Vraagprijs
€ 485.000,- k.k.
Status
Verkocht
Aanvaarding
In overleg
Aangeboden sinds
Maandag 28 juli 2025

Bouw

Type object
Woonhuis, eengezinswoning, tussenwoning
Soort bouw
Bestaande bouw
Bouwperiode
1963
Type dak
Zadeldak
Isolatievormen
Dakisolatie
Dubbel glas
Vloerisolatie

Oppervlaktes en inhoud

Perceeloppervlakte
150 m²
Woonoppervlakte
126 m²
Inhoud
438 m³
Oppervlakte externe bergruimte
6 m²

Indeling

Aantal bouwlagen
3
Aantal kamers
6 (waarvan 5 slaapkamers)

Locatie

Ligging
Aan rustige weg
Beschutte ligging
In woonwijk

Tuin

Type
Achtertuin
Hoofdtuin
Ja
Oriëntering
Zuid-west
Heeft een achterom
Ja
Staat
Prachtig aangelegd
Tuin 2 - Type
Voortuin
Tuin 2 - Staat
Prachtig aangelegd

CV ketel

Warmtebron
Gas
Bouwjaar
2023
Eigendom
Eigendom

Uitrusting

Warm water
CV-ketel
Verwarmingssysteem
Centrale verwarming
Parkeergelegenheid
Parkeerplaats
Tuin aanwezig
Ja

Kadastrale gegevens

Kadastrale aanduiding
Rijswijk D 6008
Perceeloppervlakte
150 m²
Omvang
Deel perceel
Eigendomsituatie
Eigen grond