Verkocht:Watermunt 7, 2285 JP Rijswijk - Foto
Verkocht
+50

Watermunt 7 2285 JP Rijswijk

  • Woonhuis
  • 6 kamers
  • 5 slaapkamers
  • Bouwjaar 1996
  • 339 m² perceeloppervlakte
  • 189 m² gebruiksoppervlakte
  • A Energielabel A

Beschrijving

Deze prachtige royale twee-onder-een-kap woning met energielabel A is gelegen op het zuiden aan het water met een fraai uitzicht. De woning is gebouwd op een van de grootste kavels binnen het Eilandenrijk (onderdeel van de rustige wijk De Strijp). De woningen (diverse types) zijn geschakeerd gebouwd. Deze wijk heeft een prachtige ligging nabij winkelcentra (Bogaard, Hogeveld en Irenelaan), scholen, openbaar vervoer, uitvalswegen en op loopafstand van het Park Overvoorde en het Rijswijkse Bos.

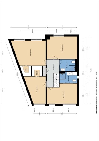
De woning beschikt over een inpandige garage. De inpandige garage kan worden verbouwd naar praktijkruimte of een extra kamer, waardoor de woonoppervlakte met 17m² wordt vergroot naar 206m². (Zie alternatieve plattegrond en artist impressie na verbouwing van de inpandige garage naar een praktijkruimte).

Rondom de woning liggen royale tuinen grotendeels aan het water en op het zuiden. Dat deze tuinen ruim zijn blijkt uit het feit dan minder dan een derde van het perceel bebouwd is (104 m² van 339 m²), terwijl de woning ook royale maten heeft mede door de inpandige garage. Achtertuin 10.5 x 7.5m, zijtuin 18.5 m x 8 m. Meerdere terrassen, hardhouten steiger en beschoeiing zijn aangebracht.

Indeling: De entree op straatniveau biedt toegang tot de woning, ruime betegelde hal, meterkast en toilet met fonteintje. toegang tot de inpandige garage .

De royale woon-/eetkamer met Bruynzeel parketvloer, heeft vooral lange ramen en een schuifpui. De woonkamer is voorzien van een open haard (gas). De woon/eetkamer biedt een bijzonder uitzicht op de tuin en waterpartij.

Voorgelegen is een open keuken "Siematic" met betegelde vloer en diverse inbouwapparatuur. (Zie alternatieve plattegrond en artist impressie hoe de indeling en inrichting van de woonkamer/keuken anders vorm kan worden gegeven).

Vanuit de hal een hardhouten trap naar de eerste verdieping, een overloop met een royale inloopkast, 4 ruime slaapkamers respectievelijk 4.87 x 3.58, 5.67 x 3.99, 4.88 x 2.62 en 3.25 x2.00, twee badkamers
respectievelijk 2.81 x 1.78 met ligbad, douche dubbele wastafels en 1.92 x 1.38 met douche, vaste wastafel en tweede toilet.
Het is een optie om de 1e etage anders in te delen: directe toegang van 1 slaapkamer naar de vergrote badkamer en twee slaapkamers met een walk in closet (zie alternatieve plattegrond en artist impressie).

Tweede Verdieping: grote en lichte slaapkamer ca. 5.89 x 3.86, wasruimte met opstelplaats CV-combiketel en toegang tot een ruim zonnig dakterras ca. 16m² (op- en uitbouw mogelijk) op het zuiden met een schitterend uitzicht over de wijk en het water.
(zie alternatieve plattegrond indien dakterras wordt volgebouwd door een uitbouw en terras): de woonoppervlakte wordt hierdoor vergroot met ca. 15m²)

Aanvullende informatie:
- Zie impressie plattegronden en foto's.
- Eigen grond 339m²
- Achtertuin 10.5 x 7.5 zijtuin 18.5 x 8 op het Zuiden
- Twee parkeerplaatsen op eigen terrein
- Woonoppervlakte 189m²
- 7 kamers
- Exacte maten zie plattegronden
- Bouwjaar 1996
- Energielabel A
- Garage
- Parkeer plaats(en) op eigen terrein
- Achterzijde voorzien van zonneschermen
- Glasvezel aansluiting
- Verwarming middels CV-combiketel
- Ouderdom en materialenclausule van toepassing
- Oplevering december 2022

- KORTOM DEZE SCHITTERENDE WONING IS ZEKER EEN BEZICHTIGING WAARD.

Kaart

Kenmerken

Overdracht

Referentienummer
00015
Vraagprijs
€ 695.000,- k.k.
Status
Verkocht
Aanvaarding
In overleg
Aangeboden sinds
Maandag 28 juli 2025

Bouw

Type object
Woonhuis, eengezinswoning, hoekwoning
Soort bouw
Bestaande bouw
Bouwperiode
1996
Type dak
Platdak
Isolatievormen
Dubbel glas

Oppervlaktes en inhoud

Perceeloppervlakte
339 m²
Woonoppervlakte
189 m²
Inhoud
716 m³
Oppervlakte overige inpandige ruimten
17 m²
Oppervlakte gebouwgebonden buitenruimte
25 m²

Indeling

Aantal bouwlagen
3
Aantal kamers
6 (waarvan 5 slaapkamers)

Locatie

Ligging
Aan rustige weg
Aan water
Beschutte ligging
In woonwijk
Vrij uitzicht

Tuin

Type
Tuin rondom
Hoofdtuin
Ja
Oriëntering
Noorden
Heeft een achterom
Ja
Staat
Prachtig aangelegd
Tuin 2 - Type
Achtertuin
Tuin 2 - Staat
Prachtig aangelegd
Tuin 3 - Type
Voortuin
Tuin 3 - Staat
Prachtig aangelegd
Tuin 4 - Type
Zijtuin
Tuin 4 - Staat
Prachtig aangelegd

Energieverbruik

Energielabel
A

Uitrusting

Warm water
Elektrische boiler
Verwarmingssysteem
Centrale verwarming
Parkeergelegenheid
Garagebox
Tuin aanwezig
Ja
Heeft een garage
Ja

Kadastrale gegevens

Kadastrale aanduiding
Rijswijk C 1614
Perceeloppervlakte
339 m²
Omvang
Geheel perceel
Eigendomsituatie
Eigen grond